Elevation 5-121 Park Models For Sale
-
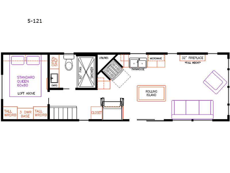
Elevation park model 5-121 highlights:
- Loft
- Sofa
- Farmhouse Sink
- Tall Bedroom Wardrobes
Make this park model your home wherever your destination is! Your crew will love to relax in the front living room since there is a sofa, recliner chair, and 32" fireplace. The chef of your group can make dinner on the 30" GE gas range or in the GE 30" over-the-range microwave, and there is a rolling island for more counter space. The loft and rear bedroom with a queen bed will provide comfy sleeping spaces, and the full bath will let you freshen up each day!
Elevation's park models are the home away from home you need! Built with vinyl siding and architectural shingles, these models have a maximum square footage of 400 square feet, and they use every bit of space. A 6' vinyl patio door with porch light and shed dormers provide visual interest as well as an open airy feeling. You will appreciate many features like the custom high-end residential cabinetry, GE appliances, cordless blinds, and a ceiling fan in the living room. The standard 43" LG Smart TV provides entertainment, while USB outlets throughout offer an easy place to charge your electronics. Each unit can be customized with a wide variety of colors, window designs, bathroom layouts, and other personalized modifications to the floorplan.
Have a question about this floorplan?Contact UsSpecifications
Sleeps 6 Length 39 ft Ext Width 11 ft Furnace BTU 40000 btu Available Beds Queen Refrigerator Type Black GE with Top Freezer Refrigerator Size 18 cu ft Cooktop Burners 4 Shower Size 60" Water Heater Capacity 20 gal Water Heater Type Electric TV Info LR 43" LG Smart TV Washer/Dryer Available Yes Shower Type Standard Electrical Service 50 amp Similar Park Models Floorplans
We're sorry. We were unable to find any results for this page. Please give us a call for an up to date product list or try our Search and expand your criteria.
Hilltop Camper & RV is not responsible for any misprints, typos, or errors found in our website pages. Any price listed excludes sales tax, registration tags, and delivery fees. Manufacturer pictures, specifications, virtual tours, and features may be used in place of actual units on our lot. Please click here to contact us for availability as our inventory changes rapidly. All calculated payments are an estimate only and do not constitute a commitment that financing or a specific interest rate or term is available. Monthly payments based on 8.99% interest rate and a down payment of 10% not including tax, title, and license.
By providing a telephone number and submitting the form you are consenting to be contacted by SMS text message. Message & data rates may apply. Reply STOP to opt out of further messaging. Privacy Policy
Manufacturer and/or stock photographs may be used and may not be representative of the particular unit being viewed. Where an image has a stock image indicator, please confirm specific unit details with your dealer representative.
